Secondo piano in Palazzo storico

In vendita
Pescia (Centro) - Borgo della Vittoria
110.000 €
2 locali
Categoria
124
m2
3
Locali
1
Camere
1
Bagni
Descrizione
Appartamento spazioso in centro storico

Nel centro storico di Pescia, a due passi da Piazza Mazzini, disponiamo in vendita di appartamento di mq. 124 posto al secondo piano in palazzo storico in ottimo stato

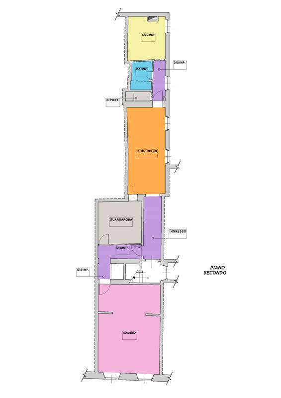
Internamento è composto da ampio ingresso - corridoio che introduce nel luminoso soggiorno con doppia finestra, il disimpegno ci accompagna nella cucina abitabile con camino, bagno con doccia, ripostiglio, camera matrimoniale di circa 36 mq. dove è possibile ricavare due stanze, vano ad uso camera.

L'appartamento è in ottimo stato, gli infissi sono in legno con doppio vetro, pavimenti in monocottura.
Impianto di riscaldamento e produzione di acqua calda autonomo a metano.

Classe energetica "G"

Per informazione e/o per la prenotazione di una visita all'immobile, telefonare al cellulare dell'agenzia immobiliare n. 3917654579 indicando il numero di riferimento 1438

*L'indirizzo riportato nell'annuncio è puramente indicativo e non è l'ubicazione esatta dell'immobile

Caratteristiche principali
Codice:
1438
Città:
Pescia (Centro)
Categoria:
2 locali
Spese condominiali:
350 € / anno
Locali:
3
Camere:
1
Bagni:
1
Mq:
124
Piano:
2
Classe energetica:
G
Stato Immobile:
Ottimo
Grado:
Medio
Posizione:
Centro
Panorama:
Vista Aperta
Orientamento:
Nord Est
Lati Liberi:
2
Giardino:
No
Arredi:
Semi Arredato
Tipo Soggiorno:
Salone
Tipo Cucina:
Abitabile
Riscaldamento:
Autonomo
Tipo Riscaldam.:
Caldaia
Tipo Impianto:
Radiatori
Fonte Energetica:
Metano
Acqua Calda:
Autonoma
Raffrescamento:
No
Infissi:
Legno Doppio Vetro
Serramenti:
Buono
Persiana:
Persiana Legno
Pavim. Giorno:
Ceramica
Pavim. Notte:
Ceramica
Pavim. Cucina:
Ceramica
Pavim. Bagno:
Ceramica
Accesso Disabili:
No
Accesso interno disabili:
Non accessibile
Isolamento:
Non presente
Isolamento termico:
Nessuno
Isolamento acustico:
Nessuno
Destinato a residenti:
Si
Impianto d’irrigazione:
No
VMC:
No
Accessori
Armadio a Muro
Camino
Doppi Vetri
Ripostiglio
Mappa
Distanze
Posizione
Centro50 m
Mare50 km
Parco pubblico500 m
Istruzione
Scuola materna600 m
Scuola elementare600 m
Scuola media600 m
Scuola superiore600 m
Università45 km
Mezzi di trasporto
Aeroporto45 km
Fermata metro-bus-tram300 m
Stazione di servizio1 km
Stazione dei treni2,2 km
Altri servizi
Banca100 m
Chiesa100 m
Farmacia50 m
Ospedale300 m
Supermercato800 m
Video
Planimetrie
Cookie preference